行业知识

电压互感器固定安装知识介绍

2022-10-25 09:13:04 多宝(中国)

电压互感器固定安装知识介绍

  电压互感器,类似降压变压器,由于高压开关柜通过的一般是大于一万伏的电压,这个电压是无法采用电压表直接测量的,不像低压柜可以铜排上直接取电。高压必须通过转换装置变成可以供电压表测量的低压,如电磁感应,一次绕组多二次绕组少,感应出来的电压就是低电压,还有通过电阻分压,电阻串联,分压与电阻成正比,中间抽头测量电压,还有电容分压等等。

图片关键词

电压互感器就是电磁式的,采用环氧树脂浇铸,形成外部绝缘,内部一二次线圈及出线端头浇铸在里面,形成一二次绝缘。


标准应用要求电压互感器的一次侧和二次侧都要安装熔断器,避免电压互感器磁饱和谐振等引起的过电流。


电压互感器在开关柜里的安装多数是采用抽出式结构,


电压互感器固定式安装主要应用于计量或手车式无法安装的地方,计量要求防窃电,电流回路串联在进出线之间,断开就没电,电压回路只是连接到高压回路上,抽出不影响供电,而且可以主回路带电抽出,因此一般计量采用电流互感器、电压互感器一体式手车,这样无法抽出。还有就是固定安装,隔室门安装挂锁、铅封等装置防窃电。

图片关键词

电压互感器固定安装的形式还用于主母线的电压测量,直接安装在主母线上,可以节省两台抽出式母线PT柜,安装在母线室顶部或后部的电压互感器,与主母线直接相连,为节省空间一般采用带熔断器一体式的电压互感器,这种安装,国外项目比较多,ABB,EATON等样本里都有典型方案。


有客户反应,国内电压互感器一次侧熔断器会经常熔断,有的甚至一个月就会熔断一次,这样高频次的熔断更换对于固定安装基本上是无法接受的,特别是主母线电压互感器,因此必须考虑固定式安装如何快速更换熔断器。


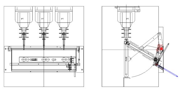
这个问题有了很多方案,首先是采用隔离刀闸,大家知道,电压互感器一次电流很小,一般熔断器采用0.5A,这个电流只要接触上就好,可以直接分合。因此充气柜内部,有采用弹簧钢丝的简易PT隔离开关,柜前简易机构旋转带动钢丝与母线不接触,断开电压互感器,充气柜内电气间隙小,不受环境影响,因此采用这种方案经济可靠,应用到空气绝缘柜内就要有足够的断口距离,尺寸很大,环境腐蚀等导致接触不好等。


因此空气柜中有了熔丝刀闸,有直动式和旋转式的,就是把熔断器作为动刀的一部分,熔断器连接触点与高压铜排连接,通过隔离开关分合,实现电压互感器通、断电,而熔断器又易于更换,40.5kV熔断器刀闸,固定端连接到电压互感器一次端头,熔断器安装在绝缘筒内部,拐臂机构带动刀闸触头与铜排接触,通过完善联锁定位,熔丝刀闸分闸过程先接触到接地排放电,然后才能更换熔断器。

图片关键词

图片关键词

还有一种方案,就是带熔断器电压互感器整体旋转式,通过机构将电压互感器整体旋转与母线接触、断开,断口后到位后更换熔断器。电压互感器比较重,体积大,需要合适的机构带动互感器旋转。

图片关键词

电压互感器固定安装可以节省开关柜数量,无需复杂的手车、触臂系统,合理的设计可以保证安全,同时熔断器更换方便。






首页
产品
新闻
联系